projekte

Neubau Ellly-Heus-Knapp-Gymnasium, Stuttgart

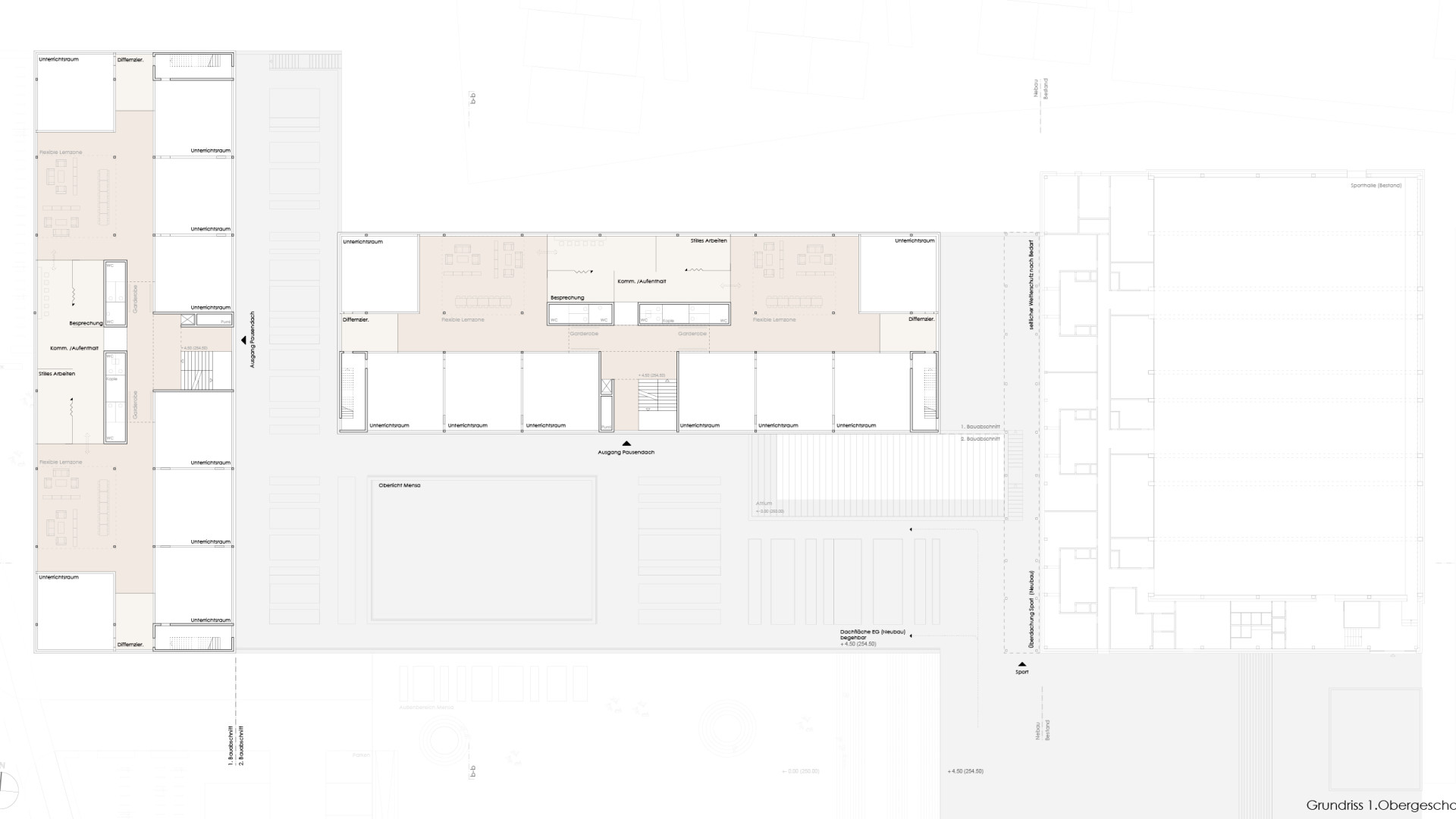
Der Entwurf für das Elly-Heuss-Knapp-Gymnasium basiert auf dem Konzept der „Lernhäuser“, die in zwei T-förmig angeordneten, dreigeschossigen Baukörpern organisiert sind. Diese ermöglichen offene, flexible Lernlandschaften, unterstützen moderne Unterrichtsformen und werden durch ein eingeschossiges Sockelgeschoss mit öffentlichen Bereichen ergänzt.
Die städtebauliche Einbindung reagiert sensibel auf die Umgebung:
Der südliche Grundstücksteil bleibt als Kaltluftschneise erhalten, während die Baukörper klare Raumkanten und qualitätsvolle Außenräume schaffen.
Der Schulhof ist terrassenartig gegliedert und bietet Aufenthaltsqualität durch Hochbeete, Sitzstufen und Baumbestand.
Das Gebäude verfügt über eine klare innere Struktur mit zentraler Magistrale, flexibel nutzbaren Räumen und einem prominent platzierten Forum.
Die Bauweise in Stahlbeton und Aluminium ermöglicht eine langfristige Anpassungsfähigkeit.

Auszug aus dem Preisgericht:

Die vorgeschlagenen Lernhäuser erfüllen die geforderten pädagogischen Qualitäten und überzeugen sowohl innenräumlich als auch in wirtschaftlicher Hinsicht durch ihre sehr gute Tagesbelichtung. […] Insgesamt stellt die Arbeit einen sehr guten Beitrag zur gestellten Aufgabe dar.

Wettbewerb

Ergebnis

1. Preis

Entscheidung

01/2014

Verfahrensart

Nichtoffener Wettbewerb

Auslober:in

Landeshauptstadt Stuttgart

Entwurf

Frank Hausmann, Oliver Kratz, Kian Feagh Abkhezr, Simon Gellert

Zu Competitionline:

Projektdaten

Ergebnis

1. Preis

Entscheidung

01/2014

Verfahrensart

Nichtoffener Wettbewerb

Auslober:in

Landeshauptstadt Stuttgart

Entwurf

Frank Hausmann, Oliver Kratz, Kian Feagh Abkhezr, Simon Gellert

Zu Competitionline:

Sie haben Fragen? Kontaktieren Sie uns.